Das regional etablierte Weingut plant die Stärkung seines Brennerei-Profils. Um die Reifung hochwertiger Destillate am Standort langfristig zu sichern und auszubauen, entsteht ein neues Fasslager, das zugleich die räumliche Ergänzung für das wachsende Veranstaltungs- und Weinangebot bildet.
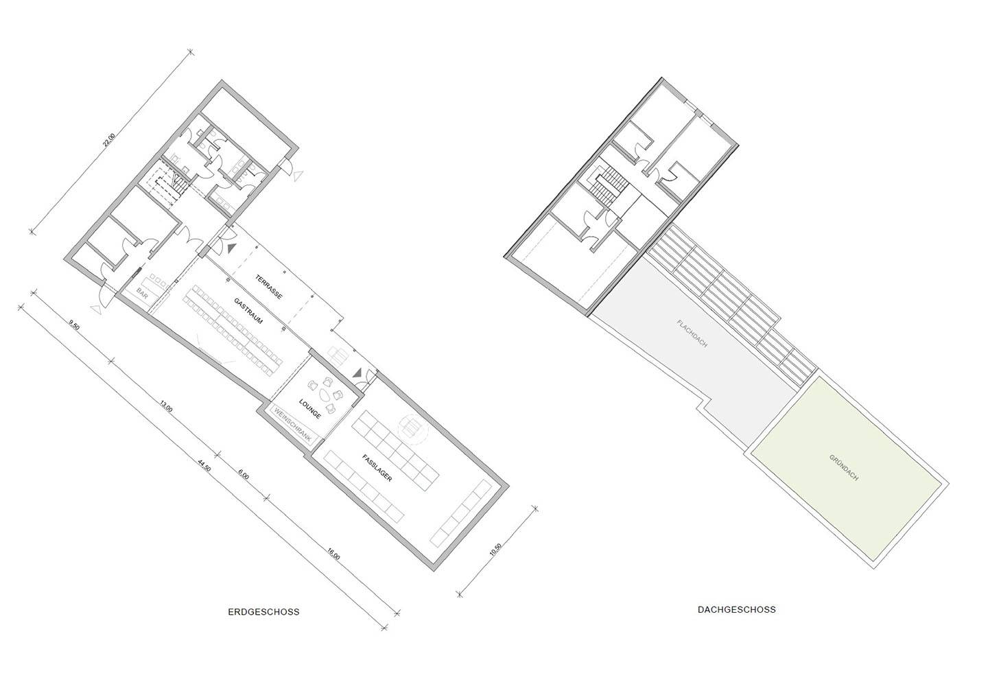
Der Neubau kombiniert das neue Fasslager mit einer Vinothek und einem kleinen Eventbereich. Der Entwurf reagiert auf die ortstypische Bebauung und gliedert den Baukörper in drei klar definierte Zonen: ein straßenseitiges Funktionshaus mit Satteldach, den zum Hof öffenbaren Gastraum sowie das im ansteigenden Gelände liegende, separat zugängliche Fasslager.
Das Fasslager bildet das Herzstück des Projekts. Es ist für 80–100 Barrique-Fässer ausgelegt und dient der zweijährigen Reifung hochprozentiger Destillate. Führungen kleiner Gruppen sind vorgesehen. Aufgrund der Lagerung unverzollter Spirituosen sowie des hohen Alkoholgehalts sind besondere brandschutz- und explosionsschutztechnische Anforderungen zu berücksichtigen.
Der Gastraum bietet Platz für kleinere Veranstaltungen mit etwa 30–40 Gästen und kombiniert rustikale und moderne Materialien zu einem edel-atmosphärischen Ambiente. Ein ergänzendes „Herrenzimmer“ ermöglicht exklusive Verkostungen in kleiner Runde. Eine Verteilerküche für Caterer, Tresen und Backoffice unterstützen die gastronomischen Abläufe. Im Obergeschoss stehen zudem zwei Übernachtungsräume zur Verfügung.
So entsteht mit dem Neubau ein funktional klar strukturiertes und atmosphärisch hochwertiges Ensemble, das Reifung, Präsentation und Genuss auf zeitgemäße Weise vereint.
